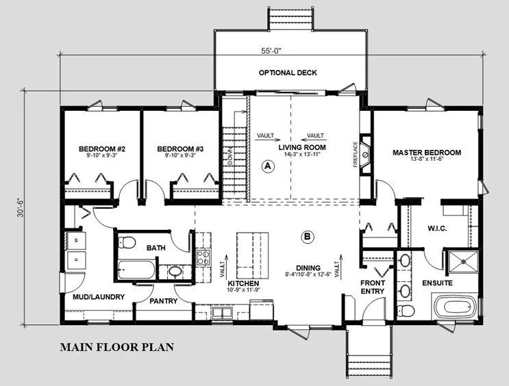
The KINGSFORD IV
1,608 sq. ft.
Fully customizable: Re-size, reverse, add/subtract bedrooms and bathrooms, change windows/doors, move walls, etc.
3 Bedroom
2 Bath
55’-0” x 30’-6” Footprint
The Kingsford IV
1,608 Sq. Ft.
*Floorplan is an artistic rendering only. Some features shown exceed standard specs. Best suited for basement or crawl space.
